SFERACO
Adaptateur cannelé aluminium - E
4.96€HT

Avantage de l'émaillage TEN par bain et cuisson :

| 25 cm | 33 cm | 50 cm | 66 cm | 1 m | |
| L | 250 | 330 | 500 | 660 | 1000 |
| Lu | 190 | 270 | 440 | 600 | 940 |
Cotes (Lu - Longueur utile) pour un assemblage d'un tuyau émaillé coulissant de 50cm et un tuyau émaillé d'une longueur de 33, 50, 66 cm ou 1 m.
| coulissant 50cm + ... | 33 cm | 50 cm | 66 cm | 1 m |
| Lu-a | 440 | 500 | 660 | 1000 |
| Lu-b | 690 | 860 | 1020 | 1360 |
Pour assurer la stabilité du conduit émaillé, respecter un emboîtement minimum de 80 mm.

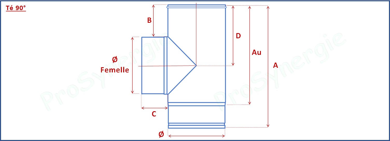
| Ø | 97 | 111 | 125 | 130 | 139 | 150 | 153 | 180 | 200 |
| A | 60 | 60 | 60 | 50 | 60 | 60 | 60 | ||
| B | 90 | 90 | 90 | 90 | 90 | 90 | 90 | ||
| C | 194 | 200 | 200 | 190 | 194 | 194 | 194 | ||
| D | 410 | 400 | 400 | 410 | 396 | 396 | 396 | ||
| Du | 350 | 340 | 340 | 350 | 336 | 336 | 336 | ||
| E | 350 | 340 | 340 | 355 | 336 | 336 | 336 |

| Ø | 97 | 111 | 125 | 130 | 139 | 150 | 153 | 180 | 200 |
| A | 75 | 70 | 75 | 75 | 85 | 85 | 85 | 85 | |
| B | 110 | 120 | 130 | 130 | 125 | 125 | 128 | 128 | |
| C | 210 | 230 | 245 | 245 | 260 | 260 | 248 | 248 | |
| D | 310 | 330 | 370 | 370 | 380 | 380 | 368 | 368 | |
| Du | 250 | 270 | 310 | 310 | 320 | 320 | 308 | 308 | |
| E | 210 | 230 | 245 | 245 | 260 | 260 |

| Ø | 97 | 111 | 125 | 130 | 139 | 150 | 153 | 180 | 200 |
| A | 115 | 130 | 140 | 145 | 145 | 145 | 155 | 155 | |
| B | 180 | 200 | 230 | 240 | 240 | 240 | 245 | 245 | |
| C | |||||||||
| D | 375 | 380 | 460 | 500 | 500 | 470 | 470 | 490 | |
| Du | 315 | 320 | 400 | 440 | 440 | 410 | 410 | 430 | |
| E | 215 |

| Ø | 97 | 111 | 125 | 130 | 139 | 150 | 153 | 180 | 200 |
| A | 140 | 140 | 190 | 190 | 190 | 200 | 201 | ||
| B | 220 | 230 | 320 | 320 | 325 | 350 | 345 | ||
| C | |||||||||
| D | 270 | 280 | 305 | 395 | 390 | 400 | 410 | ||
| Du | 210 | 220 | 245 | 335 | 330 | 340 | 350 | ||
| E | 140 | 140 | 190 | 190 | 190 | 200 | 201 |

| Ø | 97 | 111 | 125 | 130 | 139 | 150 | 153 | 180 | 200 |
| A | 300 | 300 | 300 | 300 | 300 | 300 | 300 | 380 | 380 |
| Au | 240 | 240 | 240 | 240 | 240 | 240 | 240 | 320 | 320 |
| B | 100 | 100 | 90 | 85 | 80 | 75 | 70 | 95 | 85 |
| C | 70 | 70 | 75 | 75 | 75 | 75 | 75 | 75 | 75 |
| D | 149 | 156 | 153 | 150 | 150 | 150 | 147 | 185 | 185 |

| Longueurs et quantité | Lu | Ø | |||||||||||||||||||||
| 25 cm | 33 cm | 50 cm | 66 cm | 1 m | |||||||||||||||||||
| soit une longueur utile | 97 | 111 | 125 | 130 | 139 | 150 | 153 | 180 | 200 | ||||||||||||||
| 190 | 270 | 440 | 600 | 940 | HA | VA | HA | VA | HA | VA | HA | VA | HA | VA | HA | VA | HA | VA | HA | VA | HA | VA | |
| 0 | 90 | 350 | 90 | 340 | 90 | 340 | 90 | 350 | 90 | 336 | 90 | 336 | 90 | 336 | |||||||||
| 1 | 190 | 185 | 515 | 185 | 505 | 185 | 505 | 185 | 515 | 185 | 501 | 185 | 501 | 185 | 501 | ||||||||
| 1 | 270 | 225 | 584 | 225 | 574 | 225 | 574 | 225 | 584 | 225 | 570 | 225 | 570 | 225 | 570 | ||||||||
| 2 | 380 | 280 | 679 | 280 | 669 | 280 | 669 | 280 | 679 | 280 | 665 | 280 | 665 | 280 | 665 | ||||||||
| 1 | 440 | 310 | 731 | 310 | 721 | 310 | 721 | 310 | 731 | 310 | 717 | 310 | 717 | 310 | 717 | ||||||||
| 1 | 1 | 460 | 320 | 748 | 320 | 738 | 320 | 738 | 320 | 748 | 320 | 734 | 320 | 734 | 320 | 734 | |||||||
| 2 | 540 | 360 | 818 | 360 | 808 | 360 | 808 | 360 | 818 | 360 | 804 | 360 | 804 | 360 | 804 | ||||||||
| 3 | 570 | 375 | 844 | 375 | 834 | 375 | 834 | 375 | 844 | 375 | 830 | 375 | 830 | 375 | 830 | ||||||||
| 1 | 600 | 390 | 870 | 390 | 860 | 390 | 860 | 390 | 870 | 390 | 856 | 390 | 856 | 390 | 856 | ||||||||
| 1 | 1 | 630 | 405 | 896 | 405 | 886 | 405 | 886 | 405 | 896 | 405 | 882 | 405 | 882 | 405 | 882 | |||||||
| 1 | 1 | 710 | 445 | 965 | 445 | 955 | 445 | 955 | 445 | 965 | 445 | 951 | 445 | 951 | 445 | 951 | |||||||
| 1 | 2 | 730 | 455 | 982 | 455 | 972 | 455 | 972 | 455 | 982 | 455 | 968 | 455 | 968 | 455 | 968 | |||||||
| 3 | 810 | 495 | 1051 | 495 | 1041 | 495 | 1041 | 495 | 1051 | 495 | 1037 | 495 | 1037 | 495 | 1037 | ||||||||
| 1 | 1 | 870 | 525 | 1103 | 525 | 1093 | 525 | 1093 | 525 | 1103 | 525 | 1089 | 525 | 1089 | 525 | 1089 | |||||||
| 2 | 880 | 530 | 1112 | 530 | 1102 | 530 | 1102 | 530 | 1112 | 530 | 1098 | 530 | 1098 | 530 | 1098 | ||||||||
| 1 | 1 | 1 | 900 | 540 | 1129 | 540 | 1119 | 540 | 1119 | 540 | 1129 | 540 | 1115 | 540 | 1115 | 540 | 1115 | ||||||
| 2 | 2 | 920 | 550 | 1147 | 550 | 1137 | 550 | 1137 | 550 | 1147 | 550 | 1133 | 550 | 1133 | 550 | 1133 | |||||||
| 1 | 940 | 560 | 1164 | 560 | 1154 | 560 | 1154 | 560 | 1164 | 560 | 1150 | 560 | 1150 | 560 | 1150 | ||||||||
| 2 | 1 | 980 | 580 | 1199 | 580 | 1189 | 580 | 1189 | 580 | 1199 | 580 | 1185 | 580 | 1185 | 580 | 1185 | |||||||
| 2 | 1 | 1 | 1090 | 635 | 1294 | 635 | 1284 | 635 | 1284 | 635 | 1294 | 635 | 1280 | 635 | 1280 | 635 | 1280 | ||||||
| 1 | 1 | 1130 | 655 | 1329 | 655 | 1319 | 655 | 1319 | 655 | 1329 | 655 | 1315 | 655 | 1315 | 655 | 1315 | |||||||
| 1 | 1 | 1210 | 695 | 1398 | 695 | 1388 | 695 | 1388 | 695 | 1398 | 695 | 1384 | 695 | 1384 | 695 | 1384 | |||||||
| 2 | 1 | 1320 | 750 | 1493 | 750 | 1483 | 750 | 1483 | 750 | 1493 | 750 | 1479 | 750 | 1479 | 750 | 1479 | |||||||
| 1 | 1 | 1380 | 780 | 1545 | 780 | 1535 | 780 | 1535 | 780 | 1545 | 780 | 1531 | 780 | 1531 | 780 | 1531 | |||||||
| 1 | 1 | 1 | 1400 | 790 | 1562 | 790 | 1552 | 790 | 1552 | 790 | 1562 | 790 | 1548 | 790 | 1548 | 790 | 1548 | ||||||
| 2 | 1 | 1480 | 830 | 1632 | 830 | 1622 | 830 | 1622 | 830 | 1632 | 830 | 1618 | 830 | 1618 | 830 | 1618 | |||||||
| 3 | 1 | 1510 | 845 | 1658 | 845 | 1648 | 845 | 1648 | 845 | 1658 | 845 | 1644 | 845 | 1644 | 845 | 1644 | |||||||
| 1 | 1 | 1540 | 860 | 1684 | 860 | 1674 | 860 | 1674 | 860 | 1684 | 860 | 1670 | 860 | 1670 | 860 | 1670 | |||||||
| 1 | 1 | 1 | 1570 | 875 | 1710 | 875 | 1700 | 875 | 1700 | 875 | 1710 | 875 | 1696 | 875 | 1696 | 875 | 1696 | ||||||
| 1 | 1 | 1 | 1650 | 915 | 1779 | 915 | 1769 | 915 | 1769 | 915 | 1779 | 915 | 1765 | 915 | 1765 | 915 | 1765 | ||||||
| 1 | 2 | 1 | 1670 | 925 | 1796 | 925 | 1786 | 925 | 1786 | 925 | 1796 | 925 | 1782 | 925 | 1782 | 925 | 1782 | ||||||
| 3 | 1 | 1750 | 965 | 1866 | 965 | 1856 | 965 | 1856 | 965 | 1866 | 965 | 1852 | 965 | 1852 | 965 | 1852 | |||||||
| 1 | 1 | 1 | 1810 | 995 | 1918 | 995 | 1908 | 995 | 1908 | 995 | 1918 | 995 | 1904 | 995 | 1904 | 995 | 1904 | ||||||
| 2 | 1 | 1820 | 1000 | 1926 | 1000 | 1916 | 1000 | 1916 | 1000 | 1926 | 1000 | 1912 | 1000 | 1912 | 1000 | 1912 | |||||||
| 1 | 1 | 1 | 1 | 1840 | 1010 | 1943 | 1010 | 1933 | 1010 | 1933 | 1010 | 1943 | 1010 | 1929 | 1010 | 1929 | 1010 | 1929 | |||||
| 2 | 2 | 1 | 1860 | 1020 | 1961 | 1020 | 1951 | 1020 | 1951 | 1020 | 1961 | 1020 | 1947 | 1020 | 1947 | 1020 | 1947 | ||||||
| 2 | 1880 | 1030 | 1978 | 1030 | 1968 | 1030 | 1968 | 1030 | 1978 | 1030 | 1964 | 1030 | 1964 | 1030 | 1964 | ||||||||
| 2 | 1 | 1 | 1920 | 1050 | 2013 | 1050 | 2003 | 1050 | 2003 | 1050 | 2013 | 1050 | 1999 | 1050 | 1999 | 1050 | 1999 | ||||||
| 2 | 1 | 1 | 1 | 2030 | 1105 | 2108 | 1105 | 2098 | 1105 | 2098 | 1105 | 2108 | 1105 | 2094 | 1105 | 2094 | 1105 | 2094 | |||||
| 1 | 2 | 2070 | 1125 | 2143 | 1125 | 2133 | 1125 | 2133 | 1125 | 2143 | 1125 | 2129 | 1125 | 2129 | 1125 | 2129 | |||||||
| 1 | 2 | 2150 | 1165 | 2212 | 1165 | 2202 | 1165 | 2202 | 1165 | 2212 | 1165 | 2198 | 1165 | 2198 | 1165 | 2198 | |||||||
| 2 | 2 | 2260 | 1220 | 2307 | 1220 | 2297 | 1220 | 2297 | 1220 | 2307 | 1220 | 2293 | 1220 | 2293 | 1220 | 2293 | |||||||
| 1 | 2 | 2320 | 1250 | 2359 | 1250 | 2349 | 1250 | 2349 | 1250 | 2359 | 1250 | 2345 | 1250 | 2345 | 1250 | 2345 | |||||||
| 1 | 1 | 2 | 2340 | 1260 | 2376 | 1260 | 2366 | 1260 | 2366 | 1260 | 2376 | 1260 | 2362 | 1260 | 2362 | 1260 | 2362 | ||||||
| 2 | 2 | 2420 | 1300 | 2446 | 1300 | 2436 | 1300 | 2436 | 1300 | 2446 | 1300 | 2432 | 1300 | 2432 | 1300 | 2432 | |||||||
| 3 | 2 | 2450 | 1315 | 2472 | 1315 | 2462 | 1315 | 2462 | 1315 | 2472 | 1315 | 2458 | 1315 | 2458 | 1315 | 2458 | |||||||
| 1 | 2 | 2480 | 1330 | 2498 | 1330 | 2488 | 1330 | 2488 | 1330 | 2498 | 1330 | 2484 | 1330 | 2484 | 1330 | 2484 | |||||||
| 1 | 1 | 2 | 2510 | 1345 | 2524 | 1345 | 2514 | 1345 | 2514 | 1345 | 2524 | 1345 | 2510 | 1345 | 2510 | 1345 | 2510 | ||||||
| 1 | 1 | 2 | 2590 | 1385 | 2593 | 1385 | 2583 | 1385 | 2583 | 1385 | 2593 | 1385 | 2579 | 1385 | 2579 | 1385 | 2579 | ||||||
| 1 | 2 | 2 | 2610 | 1395 | 2610 | 1395 | 2600 | 1395 | 2600 | 1395 | 2610 | 1395 | 2596 | 1395 | 2596 | 1395 | 2596 | ||||||
| 3 | 2 | 2690 | 1435 | 2680 | 1435 | 2670 | 1435 | 2670 | 1435 | 2680 | 1435 | 2666 | 1435 | 2666 | 1435 | 2666 | |||||||
| 1 | 1 | 2 | 2750 | 1465 | 2732 | 1465 | 2722 | 1465 | 2722 | 1465 | 2732 | 1465 | 2718 | 1465 | 2718 | 1465 | 2718 | ||||||
| 2 | 2 | 2760 | 1470 | 2740 | 1470 | 2730 | 1470 | 2730 | 1470 | 2740 | 1470 | 2726 | 1470 | 2726 | 1470 | 2726 | |||||||
| 1 | 1 | 1 | 2 | 2780 | 1480 | 2758 | 1480 | 2748 | 1480 | 2748 | 1480 | 2758 | 1480 | 2744 | 1480 | 2744 | 1480 | 2744 | |||||
| 2 | 2 | 2 | 2800 | 1490 | 2775 | 1490 | 2765 | 1490 | 2765 | 1490 | 2775 | 1490 | 2761 | 1490 | 2761 | 1490 | 2761 | ||||||
| 3 | 2820 | 1500 | 2792 | 1500 | 2782 | 1500 | 2782 | 1500 | 2792 | 1500 | 2778 | 1500 | 2778 | 1500 | 2778 | ||||||||
| 2 | 1 | 2 | 2860 | 1520 | 2827 | 1520 | 2817 | 1520 | 2817 | 1520 | 2827 | 1520 | 2813 | 1520 | 2813 | 1520 | 2813 | ||||||
| 2 | 1 | 1 | 2 | 2970 | 1575 | 2922 | 1575 | 2912 | 1575 | 2912 | 1575 | 2922 | 1575 | 2908 | 1575 | 2908 | 1575 | 2908 | |||||
| Longueurs et quantité | Lu | Ø | |||||||||||||||||||||
| 25 cm | 33 cm | 50 cm | 66 cm | 1 m | |||||||||||||||||||
| soit une longueur utile | 97 | 111 | 125 | 130 | 139 | 150 | 153 | 180 | 200 | ||||||||||||||
| 190 | 270 | 440 | 600 | 940 | HA | VA | HA | VA | HA | VA | HA | VA | HA | VA | HA | VA | HA | VA | HA | VA | HA | VA | |
| 0 | 110 | 250 | 120 | 270 | 130 | 310 | 130 | 310 | 125 | 320 | 125 | 320 | 128 | 308 | 128 | 308 | |||||||
| 1 | 190 | 244 | 384 | 254 | 404 | 264 | 444 | 264 | 444 | 259 | 454 | 259 | 454 | 262 | 442 | 262 | 442 | ||||||
| 1 | 270 | 301 | 441 | 311 | 461 | 321 | 501 | 321 | 501 | 316 | 511 | 316 | 511 | 319 | 499 | 319 | 499 | ||||||
| 2 | 380 | 379 | 519 | 389 | 539 | 399 | 579 | 399 | 579 | 394 | 589 | 394 | 589 | 397 | 577 | 397 | 577 | ||||||
| 1 | 440 | 421 | 561 | 431 | 581 | 441 | 621 | 441 | 621 | 436 | 631 | 436 | 631 | 439 | 619 | 439 | 619 | ||||||
| 1 | 1 | 460 | 435 | 575 | 445 | 595 | 455 | 635 | 455 | 635 | 450 | 645 | 450 | 645 | 453 | 633 | 453 | 633 | |||||
| 2 | 540 | 492 | 632 | 502 | 652 | 512 | 692 | 512 | 692 | 507 | 702 | 507 | 702 | 510 | 690 | 510 | 690 | ||||||
| 3 | 570 | 513 | 653 | 523 | 673 | 533 | 713 | 533 | 713 | 528 | 723 | 528 | 723 | 531 | 711 | 531 | 711 | ||||||
| 1 | 600 | 534 | 674 | 544 | 694 | 554 | 734 | 554 | 734 | 549 | 744 | 549 | 744 | 552 | 732 | 552 | 732 | ||||||
| 1 | 1 | 630 | 555 | 695 | 565 | 715 | 575 | 755 | 575 | 755 | 570 | 765 | 570 | 765 | 573 | 753 | 573 | 753 | |||||
| 1 | 1 | 710 | 612 | 752 | 622 | 772 | 632 | 812 | 632 | 812 | 627 | 822 | 627 | 822 | 630 | 810 | 630 | 810 | |||||
| 1 | 2 | 730 | 626 | 766 | 636 | 786 | 646 | 826 | 646 | 826 | 641 | 836 | 641 | 836 | 644 | 824 | 644 | 824 | |||||
| 3 | 810 | 683 | 823 | 693 | 843 | 703 | 883 | 703 | 883 | 698 | 893 | 698 | 893 | 701 | 881 | 701 | 881 | ||||||
| 1 | 1 | 870 | 725 | 865 | 735 | 885 | 745 | 925 | 745 | 925 | 740 | 935 | 740 | 935 | 743 | 923 | 743 | 923 | |||||
| 2 | 880 | 732 | 872 | 742 | 892 | 752 | 932 | 752 | 932 | 747 | 942 | 747 | 942 | 750 | 930 | 750 | 930 | ||||||
| 1 | 1 | 1 | 900 | 746 | 886 | 756 | 906 | 766 | 946 | 766 | 946 | 761 | 956 | 761 | 956 | 764 | 944 | 764 | 944 | ||||
| 2 | 2 | 920 | 761 | 901 | 771 | 921 | 781 | 961 | 781 | 961 | 776 | 971 | 776 | 971 | 779 | 959 | 779 | 959 | |||||
| 1 | 940 | 775 | 915 | 785 | 935 | 795 | 975 | 795 | 975 | 790 | 985 | 790 | 985 | 793 | 973 | 793 | 973 | ||||||
| 2 | 1 | 980 | 803 | 943 | 813 | 963 | 823 | 1003 | 823 | 1003 | 818 | 1013 | 818 | 1013 | 821 | 1001 | 821 | 1001 | |||||
| 2 | 1 | 1 | 1090 | 881 | 1021 | 891 | 1041 | 901 | 1081 | 901 | 1081 | 896 | 1091 | 896 | 1091 | 899 | 1079 | 899 | 1079 | ||||
| 1 | 1 | 1130 | 909 | 1049 | 919 | 1069 | 929 | 1109 | 929 | 1109 | 924 | 1119 | 924 | 1119 | 927 | 1107 | 927 | 1107 | |||||
| 1 | 1 | 1210 | 966 | 1106 | 976 | 1126 | 986 | 1166 | 986 | 1166 | 981 | 1176 | 981 | 1176 | 984 | 1164 | 984 | 1164 | |||||
| 2 | 1 | 1320 | 1043 | 1183 | 1053 | 1203 | 1063 | 1243 | 1063 | 1243 | 1058 | 1253 | 1058 | 1253 | 1061 | 1241 | 1061 | 1241 | |||||
| 1 | 1 | 1380 | 1086 | 1226 | 1096 | 1246 | 1106 | 1286 | 1106 | 1286 | 1101 | 1296 | 1101 | 1296 | 1104 | 1284 | 1104 | 1284 | |||||
| 1 | 1 | 1 | 1400 | 1100 | 1240 | 1110 | 1260 | 1120 | 1300 | 1120 | 1300 | 1115 | 1310 | 1115 | 1310 | 1118 | 1298 | 1118 | 1298 | ||||
| 2 | 1 | 1480 | 1157 | 1297 | 1167 | 1317 | 1177 | 1357 | 1177 | 1357 | 1172 | 1367 | 1172 | 1367 | 1175 | 1355 | 1175 | 1355 | |||||
| 3 | 1 | 1510 | 1178 | 1318 | 1188 | 1338 | 1198 | 1378 | 1198 | 1378 | 1193 | 1388 | 1193 | 1388 | 1196 | 1376 | 1196 | 1376 | |||||
| 1 | 1 | 1540 | 1199 | 1339 | 1209 | 1359 | 1219 | 1399 | 1219 | 1399 | 1214 | 1409 | 1214 | 1409 | 1217 | 1397 | 1217 | 1397 | |||||
| 1 | 1 | 1 | 1570 | 1220 | 1360 | 1230 | 1380 | 1240 | 1420 | 1240 | 1420 | 1235 | 1430 | 1235 | 1430 | 1238 | 1418 | 1238 | 1418 | ||||
| 1 | 1 | 1 | 1650 | 1277 | 1417 | 1287 | 1437 | 1297 | 1477 | 1297 | 1477 | 1292 | 1487 | 1292 | 1487 | 1295 | 1475 | 1295 | 1475 | ||||
| 1 | 2 | 1 | 1670 | 1291 | 1431 | 1301 | 1451 | 1311 | 1491 | 1311 | 1491 | 1306 | 1501 | 1306 | 1501 | 1309 | 1489 | 1309 | 1489 | ||||
| 3 | 1 | 1750 | 1347 | 1487 | 1357 | 1507 | 1367 | 1547 | 1367 | 1547 | 1362 | 1557 | 1362 | 1557 | 1365 | 1545 | 1365 | 1545 | |||||
| 1 | 1 | 1 | 1810 | 1390 | 1530 | 1400 | 1550 | 1410 | 1590 | 1410 | 1590 | 1405 | 1600 | 1405 | 1600 | 1408 | 1588 | 1408 | 1588 | ||||
| 2 | 1 | 1820 | 1397 | 1537 | 1407 | 1557 | 1417 | 1597 | 1417 | 1597 | 1412 | 1607 | 1412 | 1607 | 1415 | 1595 | 1415 | 1595 | |||||
| 1 | 1 | 1 | 1 | 1840 | 1411 | 1551 | 1421 | 1571 | 1431 | 1611 | 1431 | 1611 | 1426 | 1621 | 1426 | 1621 | 1429 | 1609 | 1429 | 1609 | |||
| 2 | 2 | 1 | 1860 | 1425 | 1565 | 1435 | 1585 | 1445 | 1625 | 1445 | 1625 | 1440 | 1635 | 1440 | 1635 | 1443 | 1623 | 1443 | 1623 | ||||
| 2 | 1880 | 1439 | 1579 | 1449 | 1599 | 1459 | 1639 | 1459 | 1639 | 1454 | 1649 | 1454 | 1649 | 1457 | 1637 | 1457 | 1637 | ||||||
| 2 | 1 | 1 | 1920 | 1468 | 1608 | 1478 | 1628 | 1488 | 1668 | 1488 | 1668 | 1483 | 1678 | 1483 | 1678 | 1486 | 1666 | 1486 | 1666 | ||||
| 2 | 1 | 1 | 1 | 2030 | 1545 | 1685 | 1555 | 1705 | 1565 | 1745 | 1565 | 1745 | 1560 | 1755 | 1560 | 1755 | 1563 | 1743 | 1563 | 1743 | |||
| 1 | 2 | 2070 | 1574 | 1714 | 1584 | 1734 | 1594 | 1774 | 1594 | 1774 | 1589 | 1784 | 1589 | 1784 | 1592 | 1772 | 1592 | 1772 | |||||
| 1 | 2 | 2150 | 1630 | 1770 | 1640 | 1790 | 1650 | 1830 | 1650 | 1830 | 1645 | 1840 | 1645 | 1840 | 1648 | 1828 | 1648 | 1828 | |||||
| 2 | 2 | 2260 | 1708 | 1848 | 1718 | 1868 | 1728 | 1908 | 1728 | 1908 | 1723 | 1918 | 1723 | 1918 | 1726 | 1906 | 1726 | 1906 | |||||
| 1 | 2 | 2320 | 1750 | 1890 | 1760 | 1910 | 1770 | 1950 | 1770 | 1950 | 1765 | 1960 | 1765 | 1960 | 1768 | 1948 | 1768 | 1948 | |||||
| 1 | 1 | 2 | 2340 | 1765 | 1905 | 1775 | 1925 | 1785 | 1965 | 1785 | 1965 | 1780 | 1975 | 1780 | 1975 | 1783 | 1963 | 1783 | 1963 | ||||
| 2 | 2 | 2420 | 1821 | 1961 | 1831 | 1981 | 1841 | 2021 | 1841 | 2021 | 1836 | 2031 | 1836 | 2031 | 1839 | 2019 | 1839 | 2019 | |||||
| 3 | 2 | 2450 | 1842 | 1982 | 1852 | 2002 | 1862 | 2042 | 1862 | 2042 | 1857 | 2052 | 1857 | 2052 | 1860 | 2040 | 1860 | 2040 | |||||
| 1 | 2 | 2480 | 1864 | 2004 | 1874 | 2024 | 1884 | 2064 | 1884 | 2064 | 1879 | 2074 | 1879 | 2074 | 1882 | 2062 | 1882 | 2062 | |||||
| 1 | 1 | 2 | 2510 | 1885 | 2025 | 1895 | 2045 | 1905 | 2085 | 1905 | 2085 | 1900 | 2095 | 1900 | 2095 | 1903 | 2083 | 1903 | 2083 | ||||
| 1 | 1 | 2 | 2590 | 1941 | 2081 | 1951 | 2101 | 1961 | 2141 | 1961 | 2141 | 1956 | 2151 | 1956 | 2151 | 1959 | 2139 | 1959 | 2139 | ||||
| 1 | 2 | 2 | 2610 | 1956 | 2096 | 1966 | 2116 | 1976 | 2156 | 1976 | 2156 | 1971 | 2166 | 1971 | 2166 | 1974 | 2154 | 1974 | 2154 | ||||
| 3 | 2 | 2690 | 2012 | 2152 | 2022 | 2172 | 2032 | 2212 | 2032 | 2212 | 2027 | 2222 | 2027 | 2222 | 2030 | 2210 | 2030 | 2210 | |||||
| 1 | 1 | 2 | 2750 | 2055 | 2195 | 2065 | 2215 | 2075 | 2255 | 2075 | 2255 | 2070 | 2265 | 2070 | 2265 | 2073 | 2253 | 2073 | 2253 | ||||
| 2 | 2 | 2760 | 2062 | 2202 | 2072 | 2222 | 2082 | 2262 | 2082 | 2262 | 2077 | 2272 | 2077 | 2272 | 2080 | 2260 | 2080 | 2260 | |||||
| 1 | 1 | 1 | 2 | 2780 | 2076 | 2216 | 2086 | 2236 | 2096 | 2276 | 2096 | 2276 | 2091 | 2286 | 2091 | 2286 | 2094 | 2274 | 2094 | 2274 | |||
| 2 | 2 | 2 | 2800 | 2090 | 2230 | 2100 | 2250 | 2110 | 2290 | 2110 | 2290 | 2105 | 2300 | 2105 | 2300 | 2108 | 2288 | 2108 | 2288 | ||||
| 3 | 2820 | 2104 | 2244 | 2114 | 2264 | 2124 | 2304 | 2124 | 2304 | 2119 | 2314 | 2119 | 2314 | 2122 | 2302 | 2122 | 2302 | ||||||
| 2 | 1 | 2 | 2860 | 2132 | 2272 | 2142 | 2292 | 2152 | 2332 | 2152 | 2332 | 2147 | 2342 | 2147 | 2342 | 2150 | 2330 | 2150 | 2330 | ||||
| 2 | 1 | 1 | 2 | 2970 | 2210 | 2350 | 2220 | 2370 | 2230 | 2410 | 2230 | 2410 | 2225 | 2420 | 2225 | 2420 | 2228 | 2408 | 2228 | 2408 | |||
| Longueurs et quantité | Lu | Ø | |||||||||||||||||||||
| 25 cm | 33 cm | 50 cm | 66 cm | 1 m | |||||||||||||||||||
| soit une longueur utile | 97 | 111 | 125 | 130 | 139 | 150 | 153 | 180 | 200 | ||||||||||||||
| 190 | 270 | 440 | 600 | 940 | HA | VA | HA | VA | HA | VA | HA | VA | HA | VA | HA | VA | HA | VA | HA | VA | HA | VA | |
| 0 | 180 | 315 | 200 | 320 | 230 | 400 | 240 | 440 | 240 | 440 | 240 | 410 | 245 | 410 | 245 | 430 | |||||||
| 1 | 190 | 345 | 410 | 365 | 415 | 395 | 495 | 405 | 535 | 405 | 535 | 405 | 505 | 410 | 505 | 410 | 525 | ||||||
| 1 | 270 | 414 | 450 | 434 | 455 | 464 | 535 | 474 | 575 | 474 | 575 | 474 | 545 | 479 | 545 | 479 | 565 | ||||||
| 2 | 380 | 509 | 505 | 529 | 510 | 559 | 590 | 569 | 630 | 569 | 630 | 569 | 600 | 574 | 600 | 574 | 620 | ||||||
| 1 | 440 | 561 | 535 | 581 | 540 | 611 | 620 | 621 | 660 | 621 | 660 | 621 | 630 | 626 | 630 | 626 | 650 | ||||||
| 1 | 1 | 460 | 578 | 545 | 598 | 550 | 628 | 630 | 638 | 670 | 638 | 670 | 638 | 640 | 643 | 640 | 643 | 660 | |||||
| 2 | 540 | 648 | 585 | 668 | 590 | 698 | 670 | 708 | 710 | 708 | 710 | 708 | 680 | 713 | 680 | 713 | 700 | ||||||
| 3 | 570 | 674 | 600 | 694 | 605 | 724 | 685 | 734 | 725 | 734 | 725 | 734 | 695 | 739 | 695 | 739 | 715 | ||||||
| 1 | 600 | 700 | 615 | 720 | 620 | 750 | 700 | 760 | 740 | 760 | 740 | 760 | 710 | 765 | 710 | 765 | 730 | ||||||
| 1 | 1 | 630 | 726 | 630 | 746 | 635 | 776 | 715 | 786 | 755 | 786 | 755 | 786 | 725 | 791 | 725 | 791 | 745 | |||||
| 1 | 1 | 710 | 795 | 670 | 815 | 675 | 845 | 755 | 855 | 795 | 855 | 795 | 855 | 765 | 860 | 765 | 860 | 785 | |||||
| 1 | 2 | 730 | 812 | 680 | 832 | 685 | 862 | 765 | 872 | 805 | 872 | 805 | 872 | 775 | 877 | 775 | 877 | 795 | |||||
| 3 | 810 | 881 | 720 | 901 | 725 | 931 | 805 | 941 | 845 | 941 | 845 | 941 | 815 | 946 | 815 | 946 | 835 | ||||||
| 1 | 1 | 870 | 933 | 750 | 953 | 755 | 983 | 835 | 993 | 875 | 993 | 875 | 993 | 845 | 998 | 845 | 998 | 865 | |||||
| 2 | 880 | 942 | 755 | 962 | 760 | 992 | 840 | 1002 | 880 | 1002 | 880 | 1002 | 850 | 1007 | 850 | 1007 | 870 | ||||||
| 1 | 1 | 1 | 900 | 959 | 765 | 979 | 770 | 1009 | 850 | 1019 | 890 | 1019 | 890 | 1019 | 860 | 1024 | 860 | 1024 | 880 | ||||
| 2 | 2 | 920 | 977 | 775 | 997 | 780 | 1027 | 860 | 1037 | 900 | 1037 | 900 | 1037 | 870 | 1042 | 870 | 1042 | 890 | |||||
| 1 | 940 | 994 | 785 | 1014 | 790 | 1044 | 870 | 1054 | 910 | 1054 | 910 | 1054 | 880 | 1059 | 880 | 1059 | 900 | ||||||
| 2 | 1 | 980 | 1029 | 805 | 1049 | 810 | 1079 | 890 | 1089 | 930 | 1089 | 930 | 1089 | 900 | 1094 | 900 | 1094 | 920 | |||||
| 2 | 1 | 1 | 1090 | 1124 | 860 | 1144 | 865 | 1174 | 945 | 1184 | 985 | 1184 | 985 | 1184 | 955 | 1189 | 955 | 1189 | 975 | ||||
| 1 | 1 | 1130 | 1159 | 880 | 1179 | 885 | 1209 | 965 | 1219 | 1005 | 1219 | 1005 | 1219 | 975 | 1224 | 975 | 1224 | 995 | |||||
| 1 | 1 | 1210 | 1228 | 920 | 1248 | 925 | 1278 | 1005 | 1288 | 1045 | 1288 | 1045 | 1288 | 1015 | 1293 | 1015 | 1293 | 1035 | |||||
| 2 | 1 | 1320 | 1323 | 975 | 1343 | 980 | 1373 | 1060 | 1383 | 1100 | 1383 | 1100 | 1383 | 1070 | 1388 | 1070 | 1388 | 1090 | |||||
| 1 | 1 | 1380 | 1375 | 1005 | 1395 | 1010 | 1425 | 1090 | 1435 | 1130 | 1435 | 1130 | 1435 | 1100 | 1440 | 1100 | 1440 | 1120 | |||||
| 1 | 1 | 1 | 1400 | 1392 | 1015 | 1412 | 1020 | 1442 | 1100 | 1452 | 1140 | 1452 | 1140 | 1452 | 1110 | 1457 | 1110 | 1457 | 1130 | ||||
| 2 | 1 | 1480 | 1462 | 1055 | 1482 | 1060 | 1512 | 1140 | 1522 | 1180 | 1522 | 1180 | 1522 | 1150 | 1527 | 1150 | 1527 | 1170 | |||||
| 3 | 1 | 1510 | 1488 | 1070 | 1508 | 1075 | 1538 | 1155 | 1548 | 1195 | 1548 | 1195 | 1548 | 1165 | 1553 | 1165 | 1553 | 1185 | |||||
| 1 | 1 | 1540 | 1514 | 1085 | 1534 | 1090 | 1564 | 1170 | 1574 | 1210 | 1574 | 1210 | 1574 | 1180 | 1579 | 1180 | 1579 | 1200 | |||||
| 1 | 1 | 1 | 1570 | 1540 | 1100 | 1560 | 1105 | 1590 | 1185 | 1600 | 1225 | 1600 | 1225 | 1600 | 1195 | 1605 | 1195 | 1605 | 1215 | ||||
| 1 | 1 | 1 | 1650 | 1609 | 1140 | 1629 | 1145 | 1659 | 1225 | 1669 | 1265 | 1669 | 1265 | 1669 | 1235 | 1674 | 1235 | 1674 | 1255 | ||||
| 1 | 2 | 1 | 1670 | 1626 | 1150 | 1646 | 1155 | 1676 | 1235 | 1686 | 1275 | 1686 | 1275 | 1686 | 1245 | 1691 | 1245 | 1691 | 1265 | ||||
| 3 | 1 | 1750 | 1696 | 1190 | 1716 | 1195 | 1746 | 1275 | 1756 | 1315 | 1756 | 1315 | 1756 | 1285 | 1761 | 1285 | 1761 | 1305 | |||||
| 1 | 1 | 1 | 1810 | 1748 | 1220 | 1768 | 1225 | 1798 | 1305 | 1808 | 1345 | 1808 | 1345 | 1808 | 1315 | 1813 | 1315 | 1813 | 1335 | ||||
| 2 | 1 | 1820 | 1756 | 1225 | 1776 | 1230 | 1806 | 1310 | 1816 | 1350 | 1816 | 1350 | 1816 | 1320 | 1821 | 1320 | 1821 | 1340 | |||||
| 1 | 1 | 1 | 1 | 1840 | 1773 | 1235 | 1793 | 1240 | 1823 | 1320 | 1833 | 1360 | 1833 | 1360 | 1833 | 1330 | 1838 | 1330 | 1838 | 1350 | |||
| 2 | 2 | 1 | 1860 | 1791 | 1245 | 1811 | 1250 | 1841 | 1330 | 1851 | 1370 | 1851 | 1370 | 1851 | 1340 | 1856 | 1340 | 1856 | 1360 | ||||
| 2 | 1880 | 1808 | 1255 | 1828 | 1260 | 1858 | 1340 | 1868 | 1380 | 1868 | 1380 | 1868 | 1350 | 1873 | 1350 | 1873 | 1370 | ||||||
| 2 | 1 | 1 | 1920 | 1843 | 1275 | 1863 | 1280 | 1893 | 1360 | 1903 | 1400 | 1903 | 1400 | 1903 | 1370 | 1908 | 1370 | 1908 | 1390 | ||||
| 2 | 1 | 1 | 1 | 2030 | 1938 | 1330 | 1958 | 1335 | 1988 | 1415 | 1998 | 1455 | 1998 | 1455 | 1998 | 1425 | 2003 | 1425 | 2003 | 1445 | |||
| 1 | 2 | 2070 | 1973 | 1350 | 1993 | 1355 | 2023 | 1435 | 2033 | 1475 | 2033 | 1475 | 2033 | 1445 | 2038 | 1445 | 2038 | 1465 | |||||
| 1 | 2 | 2150 | 2042 | 1390 | 2062 | 1395 | 2092 | 1475 | 2102 | 1515 | 2102 | 1515 | 2102 | 1485 | 2107 | 1485 | 2107 | 1505 | |||||
| 2 | 2 | 2260 | 2137 | 1445 | 2157 | 1450 | 2187 | 1530 | 2197 | 1570 | 2197 | 1570 | 2197 | 1540 | 2202 | 1540 | 2202 | 1560 | |||||
| 1 | 2 | 2320 | 2189 | 1475 | 2209 | 1480 | 2239 | 1560 | 2249 | 1600 | 2249 | 1600 | 2249 | 1570 | 2254 | 1570 | 2254 | 1590 | |||||
| 1 | 1 | 2 | 2340 | 2206 | 1485 | 2226 | 1490 | 2256 | 1570 | 2266 | 1610 | 2266 | 1610 | 2266 | 1580 | 2271 | 1580 | 2271 | 1600 | ||||
| 2 | 2 | 2420 | 2276 | 1525 | 2296 | 1530 | 2326 | 1610 | 2336 | 1650 | 2336 | 1650 | 2336 | 1620 | 2341 | 1620 | 2341 | 1640 | |||||
| 3 | 2 | 2450 | 2302 | 1540 | 2322 | 1545 | 2352 | 1625 | 2362 | 1665 | 2362 | 1665 | 2362 | 1635 | 2367 | 1635 | 2367 | 1655 | |||||
| 1 | 2 | 2480 | 2328 | 1555 | 2348 | 1560 | 2378 | 1640 | 2388 | 1680 | 2388 | 1680 | 2388 | 1650 | 2393 | 1650 | 2393 | 1670 | |||||
| 1 | 1 | 2 | 2510 | 2354 | 1570 | 2374 | 1575 | 2404 | 1655 | 2414 | 1695 | 2414 | 1695 | 2414 | 1665 | 2419 | 1665 | 2419 | 1685 | ||||
| 1 | 1 | 2 | 2590 | 2423 | 1610 | 2443 | 1615 | 2473 | 1695 | 2483 | 1735 | 2483 | 1735 | 2483 | 1705 | 2488 | 1705 | 2488 | 1725 | ||||
| 1 | 2 | 2 | 2610 | 2440 | 1620 | 2460 | 1625 | 2490 | 1705 | 2500 | 1745 | 2500 | 1745 | 2500 | 1715 | 2505 | 1715 | 2505 | 1735 | ||||
| 3 | 2 | 2690 | 2510 | 1660 | 2530 | 1665 | 2560 | 1745 | 2570 | 1785 | 2570 | 1785 | 2570 | 1755 | 2575 | 1755 | 2575 | 1775 | |||||
| 1 | 1 | 2 | 2750 | 2562 | 1690 | 2582 | 1695 | 2612 | 1775 | 2622 | 1815 | 2622 | 1815 | 2622 | 1785 | 2627 | 1785 | 2627 | 1805 | ||||
| 2 | 2 | 2760 | 2570 | 1695 | 2590 | 1700 | 2620 | 1780 | 2630 | 1820 | 2630 | 1820 | 2630 | 1790 | 2635 | 1790 | 2635 | 1810 | |||||
| 1 | 1 | 1 | 2 | 2780 | 2588 | 1705 | 2608 | 1710 | 2638 | 1790 | 2648 | 1830 | 2648 | 1830 | 2648 | 1800 | 2653 | 1800 | 2653 | 1820 | |||
| 2 | 2 | 2 | 2800 | 2605 | 1715 | 2625 | 1720 | 2655 | 1800 | 2665 | 1840 | 2665 | 1840 | 2665 | 1810 | 2670 | 1810 | 2670 | 1830 | ||||
| 3 | 2820 | 2622 | 1725 | 2642 | 1730 | 2672 | 1810 | 2682 | 1850 | 2682 | 1850 | 2682 | 1820 | 2687 | 1820 | 2687 | 1840 | ||||||
| 2 | 1 | 2 | 2860 | 2657 | 1745 | 2677 | 1750 | 2707 | 1830 | 2717 | 1870 | 2717 | 1870 | 2717 | 1840 | 2722 | 1840 | 2722 | 1860 | ||||
| 2 | 1 | 1 | 2 | 2970 | 2752 | 1800 | 2772 | 1805 | 2802 | 1885 | 2812 | 1925 | 2812 | 1925 | 2812 | 1895 | 2817 | 1895 | 2817 | 1915 | |||